
Piquette Hotel
Location:
McMinnville, Oregon
Type:
Hospitality
Owners:
Timothy Wade & Carole Lundgren
Size:
7,804 sf
Status:
Under Construction
Interior Design:
Carole Lundgren
Civil Engineer:
KPFF
Landscape Design:
Green Concept Gardens
Structural Engineer:
Grummel Engineering
Contractor:
R&H Construction
Press:
︎︎︎ 2026 News-Register
McMinnville, Oregon
Type:
Hospitality
Owners:
Timothy Wade & Carole Lundgren
Size:
7,804 sf
Status:
Under Construction
Interior Design:
Carole Lundgren
Civil Engineer:
KPFF
Landscape Design:
Green Concept Gardens
Structural Engineer:
Grummel Engineering
Contractor:
R&H Construction
Press:
︎︎︎ 2026 News-Register
Located in McMinnville, Oregon - the urban center of the Willamette Valley wine industry – Piquette is a new boutique hotel that embraces the unique culture of the region. Set on a former industrial avenue that has recently been reimagined by the city as a pedestrian-oriented festival street, the new building distinctly responds to its context. Surrounded by a mix of warehouses, workshops, and wineries, the new hotel attempts to strike a balance between the city’s past and future, embracing the history and culture of the neighborhood and its working character, while introducing new scales and opportunities for engagement.
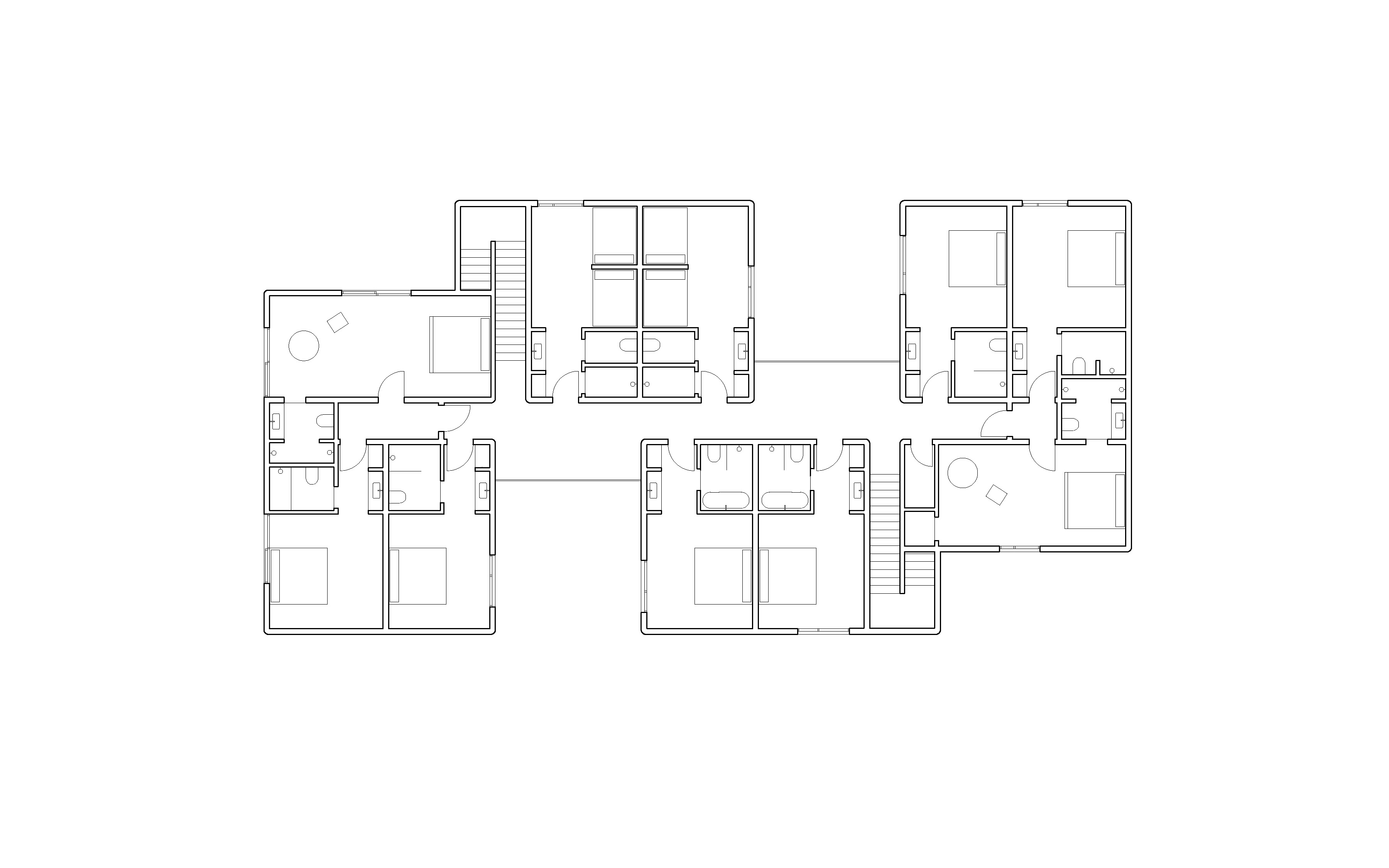
The building’s massing is shaped in relationship to the neighboring properties to open up a range of unique opportunities and intimately-scaled spaces. Organized around a series of landscaped outdoor rooms distributed across the site, the structure’s “checkerboard” form encourages a meandering discovery of Piquette’s spaces. Entirely open-air circulation avoids the need for a centralized model of hospitality. Instead, the hotel’s experience is looser, with walkways interweaving between covered courtyards, balconies, common areas, and neighboring gardens. Recalling the traditional motel in its size and exterior-orientation, Piquette reimagines the concept as a nuanced, landscape-focused, and site-specific intervention for a contemporary visitor.
The careful calibration of the building’s character carries over into its materiality, both exterior and interior. The hotel’s corrugated metal cladding references the adjacent steel sheds, yet subtle detailing like its rounded corners, delicate steel trellis, and recessed planters suggest a more refined experience within. Its exterior surfacing nods to the adjacent festival street, yet softens it, with raked concrete paths and patios, curved planter beds, and breezeblock walls. The interiors, which were designed by the hotel’s owner Carole Lundgren, offer a warm counterpoint to the exterior metal cladding and concrete paths, completing the visitor experience through distinct room concepts and rich materiality, with generous tiling and ceramic fixtures.
Taken together, the experience of the hotel is one of constant discovery and surprise. Through its form, material, and landscape, Piquette offers a distinct place-based take on boutique hospitality and a unique destination within the Willamette Valley.
The building’s massing is shaped in relationship to the neighboring properties to open up a range of unique opportunities and intimately-scaled spaces. Organized around a series of landscaped outdoor rooms distributed across the site, the structure’s “checkerboard” form encourages a meandering discovery of Piquette’s spaces. Entirely open-air circulation avoids the need for a centralized model of hospitality. Instead, the hotel’s experience is looser, with walkways interweaving between covered courtyards, balconies, common areas, and neighboring gardens. Recalling the traditional motel in its size and exterior-orientation, Piquette reimagines the concept as a nuanced, landscape-focused, and site-specific intervention for a contemporary visitor.
The careful calibration of the building’s character carries over into its materiality, both exterior and interior. The hotel’s corrugated metal cladding references the adjacent steel sheds, yet subtle detailing like its rounded corners, delicate steel trellis, and recessed planters suggest a more refined experience within. Its exterior surfacing nods to the adjacent festival street, yet softens it, with raked concrete paths and patios, curved planter beds, and breezeblock walls. The interiors, which were designed by the hotel’s owner Carole Lundgren, offer a warm counterpoint to the exterior metal cladding and concrete paths, completing the visitor experience through distinct room concepts and rich materiality, with generous tiling and ceramic fixtures.
Taken together, the experience of the hotel is one of constant discovery and surprise. Through its form, material, and landscape, Piquette offers a distinct place-based take on boutique hospitality and a unique destination within the Willamette Valley.





