Golden Gate Heights
Location:
San Francisco, CA
Type:
Houses
Size:
3,173 sf
Photographer:
Jeremy Bittermann
Status:
Completed
Press:
2025 Dwell+ Before & After; San Francisco’s Famous Fog Insprired This Midcentury Revamp
San Francisco, CA
Type:
Houses
Size:
3,173 sf
Photographer:
Jeremy Bittermann
Status:
Completed
Press:
2025 Dwell+ Before & After; San Francisco’s Famous Fog Insprired This Midcentury Revamp
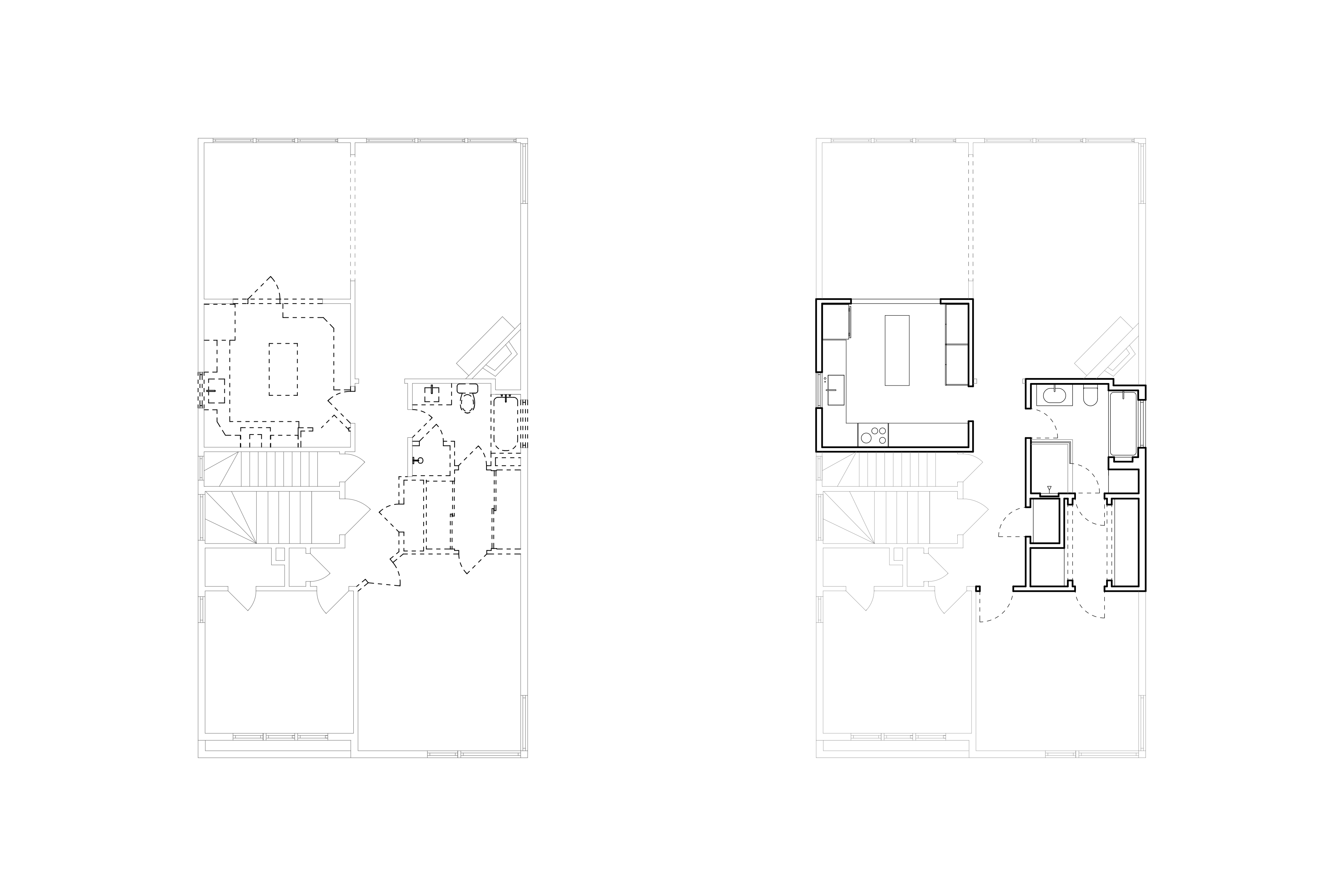
Perched in the hills of San Francisco’s Golden Gate Heights neighborhood, this three-story home was
ready for a thoughtful update. The clients, avid athletes with careers in conservation and design, and their
two young children, were looking to bring artistry to key areas using a resource-efficient & strategic ap-proach
that would avoid a complete redo. The focus: a more generous kitchen for everyday family life, a
re-imagined main bathroom, and a den that could flex as both a gym and media room. Each space was
conceived as a distinct atmosphere in which light, material, and color evoke the city’s varied environments.
Kitchen — Monolith
Maple plywood and brushed stainless steel create a timeless calm where materials are expressed as they
are, without paint or embellishment. The clients are avid cooks, so high quality simplicity that foregrounds
food preparation were priorities. From its central location the room frames layered views toward the Gold-en
Gate, braiding intimate family moments with an expansive landscape.
Bathroom — Fog
An immersive and dreamy quality defines the bathroom, where a continuous field of matte tile wraps all
surfaces, blurring boundaries into an enveloping volume for the objects within. The satin-etched glass
shower enclosure becomes a sculptural presence in this foggy space. Like the kitchen, the absence of paint
creates a depth of texture and color that is palpable.
Basement — Forest
In the basement, an existing split-level layout was enlarged for better dual use as a gym and a media
platform. Neutral colors unify an informal palette, where a textural whitewashed ceiling adds brightness
against a bold and playful structure. Expanded windows enhance daylight and connect this lower level to
the Headlands and beyond, to which the clients have a deep connection.
The result is a home that has clarity and character. Through honest materials, thoughtful framing, and a
sensitivity to light and color to create mood, the remodel transforms a once-fragmented house into a cohe-sive
home that is rooted in its surroundings and tailored to the daily rhythms of a creative, active family.
ready for a thoughtful update. The clients, avid athletes with careers in conservation and design, and their
two young children, were looking to bring artistry to key areas using a resource-efficient & strategic ap-proach
that would avoid a complete redo. The focus: a more generous kitchen for everyday family life, a
re-imagined main bathroom, and a den that could flex as both a gym and media room. Each space was
conceived as a distinct atmosphere in which light, material, and color evoke the city’s varied environments.
Kitchen — Monolith
Maple plywood and brushed stainless steel create a timeless calm where materials are expressed as they
are, without paint or embellishment. The clients are avid cooks, so high quality simplicity that foregrounds
food preparation were priorities. From its central location the room frames layered views toward the Gold-en
Gate, braiding intimate family moments with an expansive landscape.
Bathroom — Fog
An immersive and dreamy quality defines the bathroom, where a continuous field of matte tile wraps all
surfaces, blurring boundaries into an enveloping volume for the objects within. The satin-etched glass
shower enclosure becomes a sculptural presence in this foggy space. Like the kitchen, the absence of paint
creates a depth of texture and color that is palpable.
Basement — Forest
In the basement, an existing split-level layout was enlarged for better dual use as a gym and a media
platform. Neutral colors unify an informal palette, where a textural whitewashed ceiling adds brightness
against a bold and playful structure. Expanded windows enhance daylight and connect this lower level to
the Headlands and beyond, to which the clients have a deep connection.
The result is a home that has clarity and character. Through honest materials, thoughtful framing, and a
sensitivity to light and color to create mood, the remodel transforms a once-fragmented house into a cohe-sive
home that is rooted in its surroundings and tailored to the daily rhythms of a creative, active family.



